详情>>景粼原著
- 价格
- 78500元/平方米
- 户型
- 叠拼户型|独院户型|一层
- 地址
- 京密路与顺黄路交叉路口往西200米
- 电话
- 010-65768888
猜你喜欢

下载房天下APP
获取更多精品房产知识
推荐
热门知识
热门问答
[摘要] 辛苦了半辈子攒的积蓄,好不容易买个220平米的别墅,装修的时候就头疼了。装修的学问太多,是好还是全包好,很多人都很纠结装修注意事项。今天小编给大家说一个景粼原著小区的220平米装修,66万的现代风别墅是怎么装修的!
大家千万不要以为购置了房产就万事大吉了,其实装修才是我们面临的难题,你知道装修注意哪些细节么?装修预算是首要考虑的问题,景粼原著一个220平米的别墅,方式用了66万元,一起跟小编来看看到底值不值呢?
本案设计在原户型结构基础上,将结构空间加以改造,打通二三层做以挑空,使得空间的照明及通风延续。功能空间分层划分,使每一层的使用功能独立,行动路线清晰分明。空间色调简洁明快,造型朴素,材质纯洁,整个居住空间舒适闲怡。
客厅是一个家的中心,也是一家人活动最密集的场所,因此客厅装修不光要光鲜亮丽,还要满足日常的生活需求。

客厅采用无主灯设计,利用点状光源+线型灯带来照明;让光线分布更加均匀,避免了主灯带来的金碧辉煌的效果,营造出低调内敛的空间气质。

整个客厅采用现在优雅的灰白色调,以的当代设计美学手法,尽显原建筑的美感。让客厅看起来宽敞明亮之余,更添宁静雅致的休憩氛围。
卧室装修中很多人都习惯把衣物放在衣柜里,房间就会变得空荡荡的。如果卧室空间比较大的话,可以在卧室角落布置一个小型衣帽间,用来存放一些不需要立刻收起来的衣物,这样不仅能分门别类的整理好衣物,也对于卧室的空间进行了合理利用。

卧室以简单舒适为主,墙面选用灰色系,为空间注入一股艺术气息,设计师贴心选用浅灰色窗帘,使自然光影增添意象变化
卫生间常见的问题就是阴冷、潮湿,这样的卫生间很容易滋生细菌,到了夏天还会出现异味。如果你家的卫生间足够大,一定要做好干湿分离。现在很多家庭都是暗卫,都是没有窗户的,如果不做干湿分离,卫生间就会处于长期的潮湿的环境,很容易滋生细菌的,这样就会影响我们的身体健康了。

台盆龙头用了墙排水设计,方便卫生间收纳位置扩充。镜灯内嵌触碰式的递阶式的照明,满足不同光照的需求。
如果书房有一个大的窗户的话,我们可以做成一个飘窗似的书房,在墙上打上书柜,在窗边阅读,看累了眺望远处还可以保护我们的视力。在家具的选材上也不要选择颜色鲜艳的,颜色过于鲜艳容易让人们有浮躁的心理,不能安静的工作和学习。

家」除了舒适的休憩,还有着更深刻的意义-一种完全属于自己的生活,书房温和的色调有助于抚平情绪和一切棱角,放松身体的每一处神经。
明亮、鲜艳的颜色有助于小孩保持愉快的心情,千万不能用阴气沉沉的色调,在儿童房色彩的搭配时可以遵从孩子的意见以他喜爱的颜色为主调。

卧室相对公共区域的空间来讲,更温馨可爱一些,粉白搭配,有一种浪漫唯美的感觉。空灵的白色吊灯,给业主带来梦幻的视觉享受。

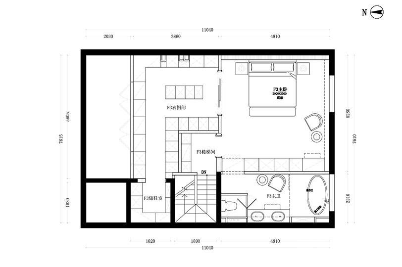
本户型独立的厨、卫、厅,各有使用功能,功能齐全,格局方正,紧凑,实用率高,整体空间浑然一体,南北通透,采光通风优越,飞扬青春思绪,独立自由,随心所欲

主卧增设衣帽间,拓宽了主卧面积同时增强收纳主卫空间增大,玻璃隔断从视觉上让空间更大,采光更好,流通更强

父母房空间增大,卫生间作为套间增强功能使用。设计师的中餐西餐和岛台设计可以使厨房空间的利用率更高
以上景粼原著小区220平米的现代设计案例是你喜欢的吗?一般来说,220平米的房子适合装修成别墅,现代风格会高端大气一点,喜欢的朋友可以借鉴本案例的设计风格。另外,提醒大家要合理规划功能区,限度的扩大房屋的使用面积,满足家人的生活习惯。
免责声明:凡注明“来源:房天下”的所有文字图片等资料,版权均属房天下所有,转载请注明出处;文章内容仅供参考,不构成投资建议;文中所涉面积,如无特殊说明,均为建筑面积;文中出现的图片仅供参考,以售楼处实际情况为准。

获取更多精品房产知识